Zum Hauptinhalt springen

Natürlich für's Klima - (Inter-)Kommunale Grüne Infrastruktur

Konzeptuelle Planungen zum Ausbau der Grünen Infrastruktur von sieben Gewinner-Kommunen des bayernweit ausgeschriebenen Ideenwettbewerbs „Natürlich für’s Klima“

Konzeptuelle Planungen zum Ausbau der Grünen Infrastruktur von sieben Gewinner-Kommunen des bayernweit ausgeschriebenen Ideenwettbewerbs „Natürlich für’s Klima“

Naturlehrgarten an der Sinn - Bad Brückenau

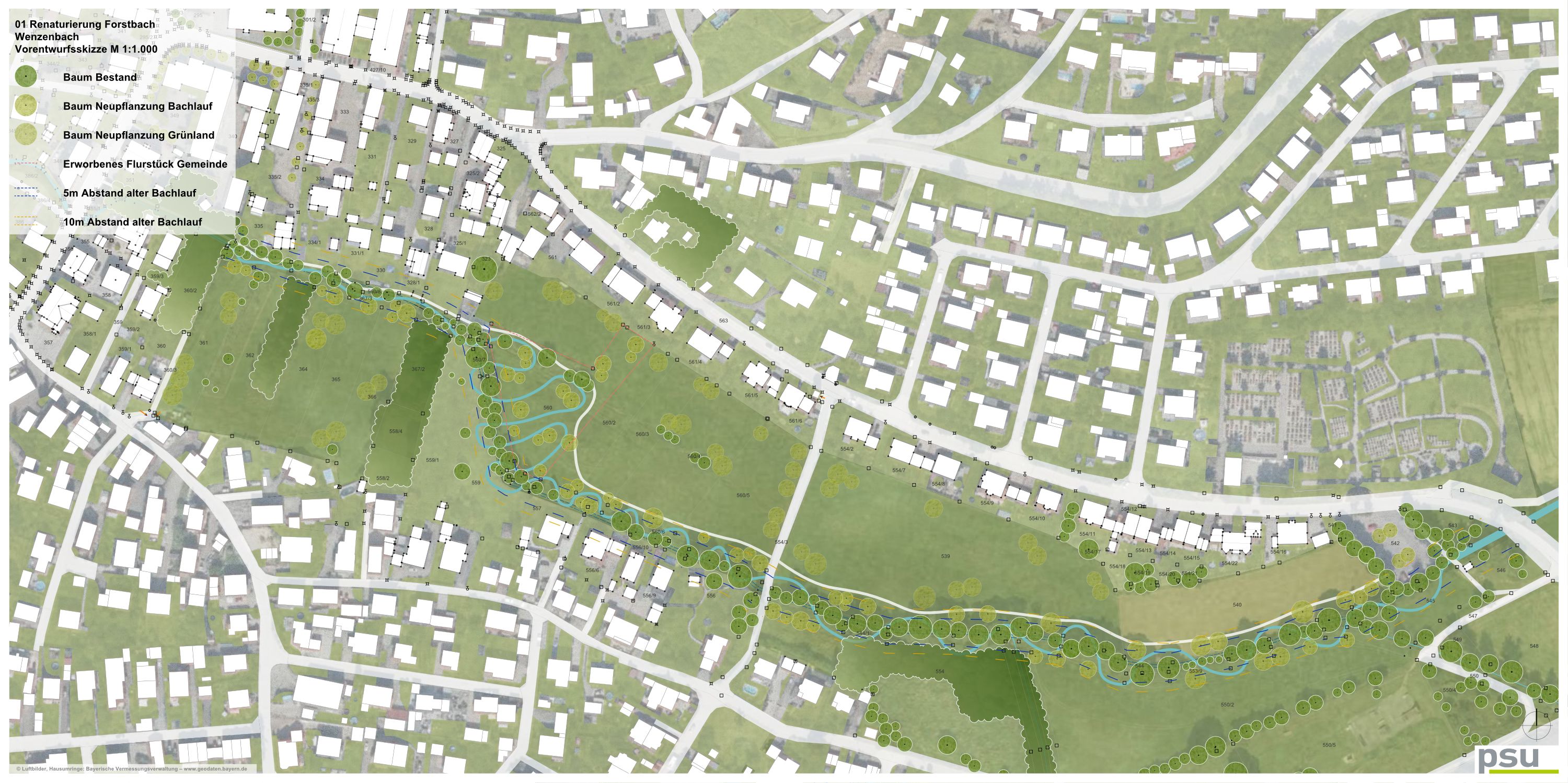
Neugestaltung des Forstbachs - Wenzenbach

Sinnrundweg - Bad Brückenau

Neugestaltung eines Schulgeländes - Bad Brückenau

Stadtpark an der Scheine - Scheinfeld

Masterplan let's green - Pullach

Naturlehrgarten an der Sinn - Bad Brückenau
Neugestaltung des Forstbachs - Wenzenbach
Sinnrundweg - Bad Brückenau
Neugestaltung eines Schulgeländes - Bad Brückenau
Stadtpark an der Scheine - Scheinfeld
Masterplan let's green - Pullach

Ein wesentlicher Bestandteil des Projekts war die Ausrichtung eines Ideenwettbewerbs, der gezielt kleinere Gemeinden mit bis zu 10.000 Einwohnern sowie Stadt-Land-Partnerschaften ansprach. Diese wurden dazu eingeladen, innovative Konzepte zur Stärkung ihrer Grünen Infrastruktur einzureichen. Das Bayerische Landesamt für Umwelt und Verbraucherschutz hat nach Einsendeschluss (13. März 2023) je Regierungsbezirk eine Kommune gewählt, die durch PSU für die Umsetzung ihrer Ideen unterstützt werden sollten.
Nach der Auswahl der Projekte begann die zweite Phase des Projekts, die eine Vor-Ort-Beratung für die ausgewählten Gemeinden umfasste. Diese Beratung war darauf ausgelegt, die Potenziale der Grünen Infrastruktur in den Gemeinden optimal zu nutzen, insbesondere im Hinblick auf Klimaanpassung und Biodiversität. Durch die enge Einbindung der Bürger und die Berücksichtigung der lokalen Gegebenheiten sollte ein nachhaltiges Netzwerk an Grünflächen geschaffen werden, das sowohl den Klimaschutz als auch die Biodiversität fördert.
Zum Abschluss der Beratungsphase durch PSU wurde eine Veranstaltung konzipiert, die unabhängig von der Projektauswahl allen interessierten Gemeinden einen Mehrwert bieten sollte. Die Veranstaltung wurde am 02. Mai 2024 durch Herrn Staatsminister Glauber in Nürnberg eröffnet.
Unter Einbindung der lokalen Bevölkerung und Entscheidungsträger konnte das Projekt so einen wichtigen Beitrag zur Stärkung der Grünen Infrastruktur und zur Klimaanpassung in den bayerischen Gemeinden leisten.

Projektbeschreibung

Ein wesentlicher Bestandteil des Projekts war die Ausrichtung eines Ideenwettbewerbs, der gezielt kleinere Gemeinden mit bis zu 10.000 Einwohnern sowie Stadt-Land-Partnerschaften ansprach. Diese wurden dazu eingeladen, innovative Konzepte zur Stärkung ihrer Grünen Infrastruktur einzureichen. Das Bayerische Landesamt für Umwelt und Verbraucherschutz hat nach Einsendeschluss (13. März 2023) je Regierungsbezirk eine Kommune gewählt, die durch PSU für die Umsetzung ihrer Ideen unterstützt werden sollten.
Nach der Auswahl der Projekte begann die zweite Phase des Projekts, die eine Vor-Ort-Beratung für die ausgewählten Gemeinden umfasste. Diese Beratung war darauf ausgelegt, die Potenziale der Grünen Infrastruktur in den Gemeinden optimal zu nutzen, insbesondere im Hinblick auf Klimaanpassung und Biodiversität. Durch die enge Einbindung der Bürger und die Berücksichtigung der lokalen Gegebenheiten sollte ein nachhaltiges Netzwerk an Grünflächen geschaffen werden, das sowohl den Klimaschutz als auch die Biodiversität fördert.
Zum Abschluss der Beratungsphase durch PSU wurde eine Veranstaltung konzipiert, die unabhängig von der Projektauswahl allen interessierten Gemeinden einen Mehrwert bieten sollte. Die Veranstaltung wurde am 02. Mai 2024 durch Herrn Staatsminister Glauber in Nürnberg eröffnet.
Unter Einbindung der lokalen Bevölkerung und Entscheidungsträger konnte das Projekt so einen wichtigen Beitrag zur Stärkung der Grünen Infrastruktur und zur Klimaanpassung in den bayerischen Gemeinden leisten.


Steckbrief
Auftraggeber
Bayerisches Staatsministerium für Umwelt und Verbraucherschutz
Bearbeitungszeitraum
2023 - 2024
Leistungen
Ausrichtung eines Ideenwettbewerbs Vor-Ort-Beratung Konzeption einer begleitenden Veranstaltung
Download